
Sede vecinal Salvador Allende
Ubicación:
Mejillones, Región de Antofagasta
Año:
2021
Metros Cuadrados:
4.222 M2
Reconocimiento:
Seleccionado - XXII Bienal de Arquitectura y Urbanismo de Chile - 2023
Seleccionado para la XXII Bienal de Arquitectura y Urbanismo de Chile 2023. El proyecto se desarrolla en el marco del programa Quiero Mi Barrio, iniciativa del Gobierno de Chile orientada a mejorar la calidad de vida en barrios vulnerables a través del fortalecimiento del tejido social y la infraestructura comunitaria. La sede se emplaza en la población Salvador Allende, ubicada en la periferia de Mejillones, en la planicie costera del desierto de Atacama, a 65 km al norte de Antofagasta.
Históricamente, Mejillones ha estado estrechamente vinculada a la actividad portuaria y minera desde el siglo XIX. En las últimas décadas, la intensificación de la actividad industrial y la instalación de centrales termoeléctricas han generado impactos ambientales significativos, como contaminación del aire y del borde costero, llevando a que la comuna sea reconocida como una zona de sacrificio. En este contexto, la organización comunitaria ha adquirido un rol fundamental, surgiendo la necesidad de contar con un espacio que permita tanto el desarrollo de actividades cotidianas como la articulación y gestión vecinal frente a las autoridades.
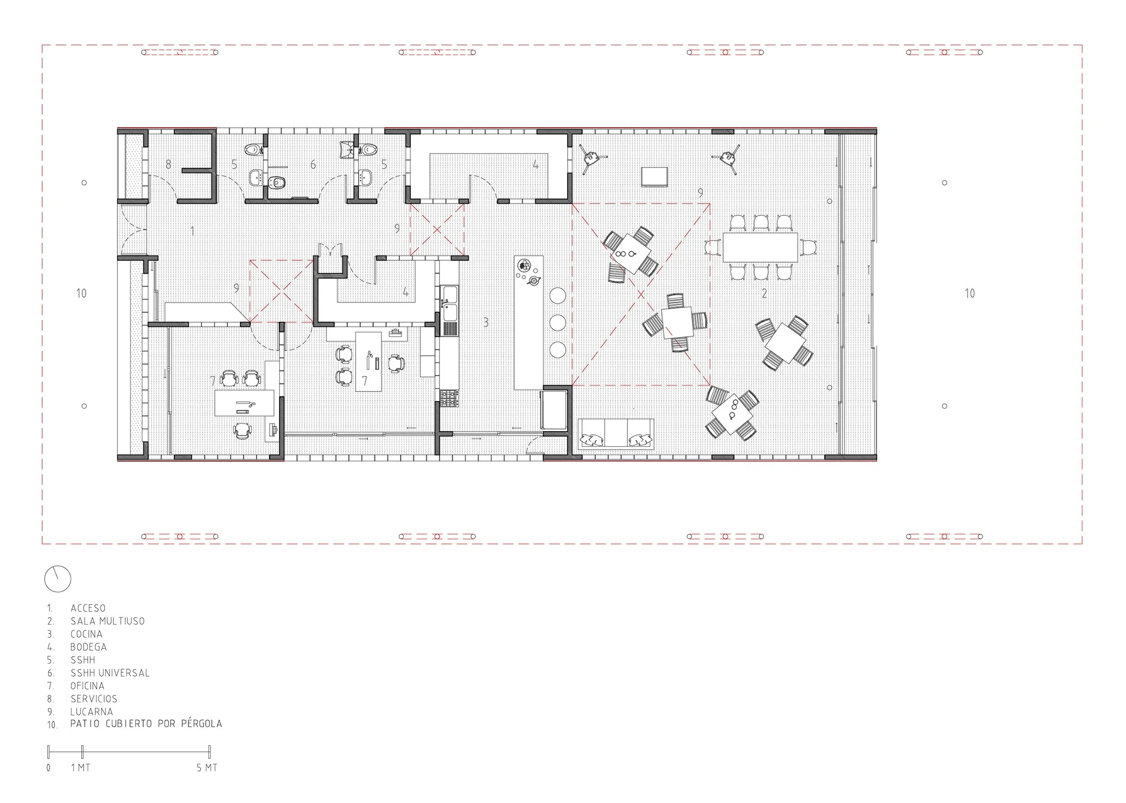
La propuesta arquitectónica responde a las condiciones ambientales del desierto costero, caracterizado por una alta radiación solar y vientos predominantes desde el suroeste que, en determinadas ocasiones, arrastran material particulado. El proyecto plantea un sistema de múltiples envolventes que actúan como filtros climáticos, generando espacios intermedios sombreados, ventilados y protegidos del viento. Estos espacios funcionan como patios y circulaciones exteriores, permitiendo un uso intensivo y confortable durante todo el año.
Uno de los aspectos más relevantes fue la ubicación y orientación del salón multiuso, definida en diálogo con la comunidad. Se ubicó el recinto alejado de las viviendas colindantes y orientado hacia el poniente, donde no existen edificaciones cercanas, respondiendo al uso frecuente en horario vespertino y nocturno para reuniones, talleres y actividades con música. Los programas de oficinas y servicios higiénicos se disponen como buffer acústico entre el salón y el entorno habitacional.
Considerando el uso predominante nocturno, el edificio incorpora una lucarna de gran escala que funciona simbólicamente como un faro comunitario. Durante la noche, proyecta la luz interior hacia el barrio, señalizando la actividad de la sede e invitando a la participación vecinal. Durante el día, la lucarna opera como un atrio bioclimático que favorece la ventilación cruzada, contribuyendo al enfriamiento pasivo del edificio y aportando iluminación cenital al salón multiuso.























